|
预制泵站应用优势: 生活污水已经慢慢的影响我们的生产生活,对于一些条件差的环境,污水的处理非常困难,因长期的滞留对于整体环境的影响还是很大的,富亚纤维缠绕预製泵站的出现,针对污水的处理进行了有利的发挥,这套装置主要使用在离主管道低的环境,或是远离主管道的一些地区,利用它的提升装置,自动的将水位送到特定污水处理厂处理,不但方便了操作过程化,极大的利于环境的改变。 预製泵站主要使用在市政工业地下室排水、地铁排水、生活区、工厂等低於地面的一种污水处理装置,因为这些场所的污水长期存留在一个地方,很容易引起环境的污染,严重的还影响人类的正常生活。利用好这套装置,可以大大改善这种污水困扰的问题,缓解各种环境压力,提高整体的生活水準。 预製泵站的特点也非常多,它的结构很小,所以佔用的面积不大,还可以进行隐蔽安装,不影响周围环境的美观,安全也比较容易保障,该装置的抗腐蚀能力也很强,在应用过程中可以有效的提高使用寿命,基本上不用进行日常的维护,故障率很低。 | |
|
|
控制系统普通功能 1、水泵交替运行(高水位报警时,多台泵同时启动,低水位报警时,水泵自动恢复交替运行)。 2、水泵具有延时启动和停止功能,高低水位根据实际流量和规定的启动次数(≤15次/小时)而设定。 3、搅拌器或反冲洗阀的控制。 4、启动导向模拟面板,可选、可调和屏蔽状态。 |
|
|
控制系统多功能型 1、通过容积计算进水流量和出水流量。 2、SCADA软件通讯平台和组态技术。 3、管网综合监控工程服务技术。 4、监控终端RTU。 5、每日清空功能、预制堵塞功能并冲洗/反转。 6、连续检测、出水流量数据采集、溢流记录等。 7、多组水泵控制,并防抱死功能和排除浮沫。 8、技能智能远程监控检测系统。泵站确保了最低的能源消耗,对水泵功率进行连续检测,并保证了水泵和管路得到及时维护。
| |
|
|
控制模式 1、现场手动控制方式。 2、远程手动控制方式。 3、远程自动控制方式。 4、专用控制器有多个输入/输出接口来连接额外的输入型号或输出型号,通过显示屏简单直观反映实时运行情况。 5、集中管理的数据库和网络服务器进行数据收集,完全实现了互联网来监测和管理的目标。 |
|
|
富亚预制泵站的选型: 在正确选型前,我们必须知道以下信息: |
|
|
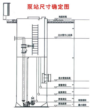
尺寸:a.设计流量、扬程;b.所需配备的水泵数量,包括工作泵和备用泵;c.地面标高、进水管/出水管标高;d.进水管/出水管管径 |
|
|
应用:应用领域--市政工程、工业、建筑或其他;室内/室外、地面上或地面下等 |
|
|
结构形式:模块化湿井泵站、模块化集成式泵站、以及完全客户定制的泵站 |
|
|
内部管路的材质:304不锈钢(标准)、316、PVC |
|
|
液位传感器:压力液位传感器(标准)、浮子开关、超声液位传感器等等 |
|
|
可选项:蓝式格栅、粉碎机、简易除臭装置 |
|
|
控制系统:现场自动液位控制、远程控制 | |
|
 | |
|
 |
|
|
可选项及附件: 富亚一体化预製泵站有配套的附件和客户化方案可供选择,以下列出了一些可选项,欲知更多详情,请联系富亚公司 附件:通风扇、加热器、干式安装泵站排水泵、变频器、流量计、提升装置等。 |
|
 |
|
|
设计依据: 1、纤维缠绕玻璃钢筒体依照GB/21238-2007标准进行设计; 2、泵站的安装依据ASTMD3839-89玻璃纤维制品地下埋设标准进行; 3、基础结构由公司按规范设计并预制; 4、泵站内的配置包括泵的数量由需方自选并提出相关要求。 |
|
| 泵站参数: |
|
|
名称 |
泵站直径 |
标准高度 |
入流流量 |
水泵功率 |
|
参数 |
1200-3800mm |
最大12m |
最大500L/s |
最大160kw |
|
注:泵站尺寸可根据实际工程需要量身设计制造。 | |